Blogs

KBDi Design Awards 2025: Explore the Categories & Maximise Your Entry Success

By Selina Zwolsman posted 18-02-2025 07:58 AM

  

We were thrilled to open the 17th annual KBDi Design Awards this week. Our program has grown significantly over the years, and our categories have been carefully refined to reflect the changing nature of our niche.
Today, we're sharing a summary of each category we offer and our top tips for a successful entry.

Small Kitchens
Did you know the average size of Australian kitchens is around 14 square metres? With more than a decade of entries behind us, we know that our members are primarily working in slightly bigger spaces; accordingly, our 'small kitchen' category accommodates kitchens up to 15 m2. This includes the pantry and seating space if in-kitchen dining has been incorporated. 

Judges are looking for clever planning in this category. They'll pay attention to how many people typically use the kitchen (you should capture this in your brief) and how the space will accommodate the necessary number of users.

Large Kitchens
If your kitchen project is more than 15 m2, you'll want to consider the large kitchens category. Again, this will need to include the pantry space. If your kitchen has an extensive scullery or butler's pantry (learn the technical difference here), you should consider the Kitchens Plus category.

Judges will again be looking at your space planning in the large kitchens category. They'll consider the distances between the primary work centres and assess the zones you've allocated.

Kitchens Plus
Kitchens with sculleries or butler's pantries, inbuilt study nooks, etc., fit into this category. Your project will be assessed on the full workability of all spaces. The judges will consider how traffic flows from the kitchen to the scullery or pantry and how you've detailed the storage spaces. If your 'plus' space is a bar, cellar or office area, make sure you highlight the relationships between the spaces.

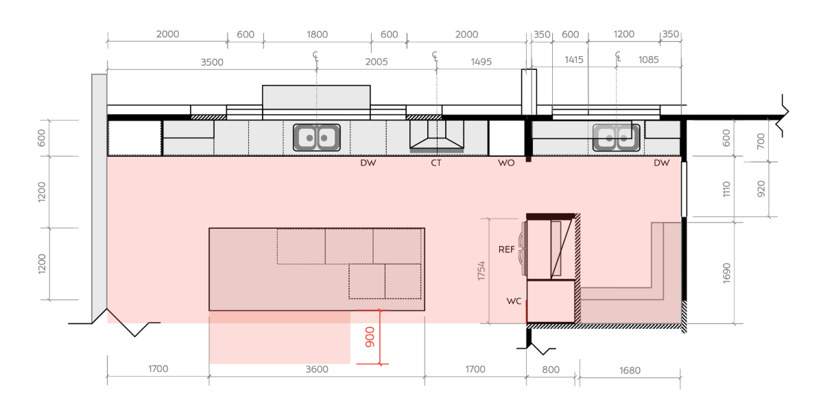
Please note the following when calculating floor areas: 
The overall floor area should include the working area (as shaded in the example below). 
The overall floor area must include a walk-in pantry or kitchen storage space. Storage zones should be indicated on the plan or elevations or set out in the design statement. 
In designs where in-kitchen seating or dining has been incorporated, the allowance for seating should be factored in (as shaded in the example below). The depth required for seating will depend on your design. The recommended minimum depths from the edge of a table or dining surface to a wall are:  

  • 600 mm to pull a chair out with no allowance for persons to pass behind when a diner is seated 
  • 900 mm to allow persons to edge behind a seated diner
  • 1100 mm to allow walking space behind a seated diner 
Calculating Floor Areas

Small Bathrooms
This category is designed for the average Australian bathroom size (around 6 m2) and those more generous 'average' bathrooms up to and including 8 m2. It's not an ideal category for powder rooms (see Design Spaces for this one), but it is better suited to three-fixture bathrooms.

Judges will be looking to see how you comply with recommended clearances and regulated codes related to electrical work and waterproofing. Ensure you include power outlets (with centrelines) on your elevations and comprehensive dimensions. If your design needed to comply with the Livable Housing Standards, highlight what you did to meet the Code.

Large Bathrooms
If you've designed a bathroom that is over 8 m2, this is the category for you. Your space may be a three or four-fixture bathroom, and it must be well documented to express your design intent to the judges. As with the small bathroom category, the panel will be looking for the clearance dimensions in your space. They'll also note where you've included power outlets (and their compliance with Australian Standards), and how you've considered storage.

Three-fixture and Four-fixture Bathrooms

Master Suites
This category is for those dreamy projects where you get to design an all-encompassing space that includes a bathroom. If you've planned a bedroom redesign with an ensuite and dressing room, or a luxurious bathroom with a full-on wardrobe space, this is the category for you. 

[Side note from Selina: Are we still using the term Master Suites? Yes, for now. I've explored this topic in depth, looking into historical references and etymology as well. (I truly am a word nerd!) I'll compile all my thoughts into a dedicated article soon. In the meantime, if you'd like to suggest alternative terms, please feel free to email me at s.zwolsman@kbdi.org.au.]

Laundries
This category is pretty self-explanatory. It includes any domestic (i.e. not commercial) laundry within a residential dwelling. The judges will be looking for an excellent combination of practical design and aesthetic prowess. If you've really reinvented a daggy old space, ensure you provide plenty of before photos in your presentation. 

Outdoor Kitchens
As the name suggests, this category is designed to show off Australia's best domestic (i.e. not commercial) outdoor kitchen spaces. The judges will examine your material selection (make sure your specification is as watertight as your substrates) and assess how the orientation will impact the area.

Design Spaces
This broad category aims to make space for any other awesome interior you've designed – other than a kitchen, bathroom, master suite or laundry. The space may be domestic or commercial, and it's best when accompanied by a great backstory. Ensure your design brief and statement set the scene for the judges and wow them with your documentation.   

Traditional or Themed Design
When we developed this category, our intention was to recognise the work that goes into designing to suit a particular style of architecture. If you've designed a residential kitchen or bathroom project in a 'traditional' or themed character, we would love to see it in this lineup. The judges will first of all look to see how you determined an architectural style (e.g. Mid-century Modern) – make sure you set this out clearly in your brief. They'll then work on identifying the key elements you used to align the new space with the particular style; we suggest you help the panel out by setting this out in your design statement.

You have two months to complete your entries (the competition closes on 24 April), but we encourage you to download the pack today.
  
Look at the Entry Guidelines, and you'll discover how simple the process is. By using our carefully curated PowerPoint template, you'll guide the judging panel through your design journey—from the initial client briefing to the final photographs.

And, as always, our team is here to help. If you're unsure about the content of your entries, our entry process or membership requirements, please don't hesitate to email awards@kbdi.org.au.

(Note: existing members can access our dedicated Awards Community. This is a dedicated Q & A forum where you'll find all the templates and guidelines in one handy spot. Log in today to check it out.)


#Feature
#KBDiAwards

0 comments
34 views

Subscribe to our eNews

Get the latest news straight to your inbox


Subscribe